The refurbished Stephenson Memorial Hall will create a modern visitor attraction in the heart of Chesterfield. Bringing together an extended theatre, a reconfigured and modern museum, alongside new gallery space, a café bar, education and community facilities.

We will be reopening the original historic entrance creating a grand one-building entrance befitting the new combined cultural venue. From here visitors will be able to enter into the welcome foyer with access to a retail space and a relocated café bar, marking both
the beginning and end of the visitor journey.

The new Corporation Street link gallery extension will create a gateway impact improving the sense of arrival to Chesterfield. At night these elevations will illuminate the street scene, ensuring the building looks vibrant at all times of day.

The work will also protect the Grade II Listed building and ensure that it remains part of the borough’s heritage for many more generations to come. Creating a more accessible experience is another key aim of the proposals. The plans include three new lifts which will significantly improve the accessibility of the building for visitors, artists, and employees.

The refurbishment of Stephenson Memorial Hall is projected to cost around £17 million with £11 million of funding being secured via the Government’s Levelling Up Fund.

Theatre

Plans aim to enhance, expand and modernise the theatre without compromising the atmosphere and historic features. The auditorium will be refurbished with new seating, increased capacity and improved sight lines. New theatre systems including lighting and stage rigging creates a contemporary theatre experience whilst the new seating layout retains the intimate feel of the auditorium.

New entrances to the rear of the stalls and extended circle will be created at ground and
first floor level, linking the theatre to the café bar and new extension. There will also be integrated exhibition and display opportunities throughout the building allowing greater access to Chesterfield’s heritage. An enhanced back of house area will ensure that artists have modern facilities where they can prepare for performances.

Museum

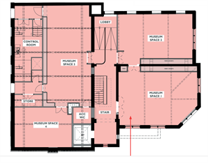
We are aiming to create a larger enhanced museum space, using the latest technology to help celebrate both our heritage and our community.

The medieval builders wheel forms the backdrop to the welcome space, offering an invitation to explore the museum. The existing museum storage and office spaces on the upper floor are reimagined as four new museum exhibition spaces, utilising the height
and celebrating the historic details of the building.

We are aiming to create a larger enhanced museum space, using the latest technology to help celebrate both our heritage and our community. The medieval builders wheel forms the backdrop to the welcome space, offering an invitation to explore the museum.

The existing museum storage and office spaces on the upper floor are reimagined as four new museum exhibition spaces, utilising the height and celebrating the historic details of the building.

The transformation will celebrate the memorial hall’s strengths as a magnificent heritage asset, with some areas that are not currently accessible to the general public reopened for all to enjoy. The new exhibition spaces will create opportunities for loans of objects from regional and national museums. The final design for the museum exhibition spaces is still being developed and more details about this will be announced in the near future.

Summary of Proposed Floorplans

Chesterfield Borough Council received around £20 million through the Government’s Levelling Up Fund. £11 million will go towards the remodelling and refurbishment of Chesterfield’s Stephenson Memorial Hall. The remaining £8.9 million will be used to extend the planned regeneration of our town centre, with investment centred on key public spaces and the connections between them – including Burlington Street, Corporation Street, Rykneld Square, Spire Walk, Market Square, New Square and Packers Row.

The Council will be investing in the future of the market creating a modern, vibrant town centre experience with space to host outdoor events, speciality markets and entertainment. Plans include better lighting and power, improved access and new stall layouts, general paving repairs, new flexible trading areas and repairs to existing stall structures.

Improvements across the town centre will improve the look, flow and feel of the town. It will include new paving, seating, lighting, planting, street furniture and digital connectivity will combine to create better-looking and better-connected spaces which people can enjoy and socialise in.

The work will be carried out in phases – due to be complete by early 2025. The detailed programme of works is being finalised, but more information
will be shared as soon as we can.

This is a significant regeneration project, which will inevitably cause some short-term disruption in the town centre.

The Council will work closely with our local partners to try and keep disruption to a minimum – and keep local businesses and residents up to date with
what’s happening.

You can find out more about this project 
and keep up to date with the latest announcements on the Chesterfield Borough Council website.

Download this information as a PDF on the Chesterfield Borough Council website.


02/03/2022